Logo
Innenstadt: Büro mit großzügigen Räumen
  • Besprechung
 Objekt-Nr:   RP304
 Land:   
 PLZ:   85049
 Ort:   Ingolstadt
 
 
Beschreibung
Das Objekt wurde im Jahre 1961 erbaut. Der Zugang zur obersten Etage Erfolg über ein Treppenhhaus oder mit dem Aufzug.

 
Energieausweis
Art: Verbrauchsausweis Gewerbe
Gültig bis: 14.11.2025
Endenergieverbrauch: 110.00 kWh/(m²*a)
Baujahr lt. Energieausweis: 1961
Wesentlicher Energieträger: Gas
Endenergieverbrauch (Wärme): 110.00 kWh/(m²*a)

Ausstattung
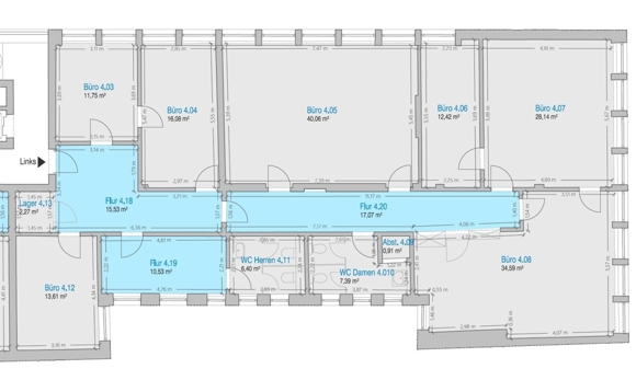
Das großzügige Büro besteht aus 7 Räumen von unterschiedlicher Größe. Das Besprechungszimmer ist mittig im Grundriss gelegen und stellt den größten Raum dar. 2 Toiletten sowie eine Abstellkammer sind ebenfalls vorhanden. Derzeit sind in den Büros zum Teil Teppich- oder PVC-Böden verlegt. Hier kann vom neuen Mieter selbst Hand angelegt werden und sich die Büros nach eigenen Wünsche herrichten. Eine Absprache mit den Eigentümern ist möglich.
Lage
Das Büro am Rathausplatz 3, 85049 Ingolstadt, liegt im Herzen der Altstadt direkt am zentralen Rathausplatz. Die Lage bietet eine hervorragende Sichtbarkeit und zählt zu den gefragtesten Geschäftsadressen der Stadt. In unmittelbarer Nähe befinden sich zahlreiche Cafés, Restaurants, Banken sowie verschiedene Dienstleister, was den Standort ideal für Gewerbenutzungen macht.​
Der Rathausplatz ist verkehrsberuhigt und optimal an den öffentlichen Nahverkehr angebunden: Die Bushaltestelle liegt nur wenige Meter entfernt. Parkmöglichkeiten sind in fußläufig erreichbaren Tiefgaragen vorhanden, der Hauptbahnhof ist in wenigen Minuten erreichbar. So vereint dieser Standort eine repräsentative Adresse mit bester Infrastruktur in Ingolstadts Innenstadt.
Sonstige Angaben
Die Kaltmiete für dieses Objekt beträgt 1.650 € monatlich, sowie eine Betriebskostenvorauszahlung von 400,00 €. Die Warmmiete beträgt somit 2.050 € im Monat. Die Kaution beläuft sich auf 4.500 €.
Sämtliche allgemeinen Hausmeisterarbeiten werden von einem professionellen Hausmeisterdienst durchgeführt (Kosten in den Betriebskosten bereits beinhaltet).
Das Objekt kann ab sofort bezogen werden.

Werte Energieausweis:
Verbrauchsausweis, 110,00 kWh/(m²a), Energieträger: Gas, Bj. 1961,
Weitere Angaben:
Vermarktungsart Miete
Nutzungsart Gewerbe
Objektart Büro/Praxen
Objekttyp Bürofläche
PLZ 85049
Ort Ingolstadt
Strasse Rathausplatz
Hausnummer 3
Baujahr 1961
Etage 4
Bürofläche 217 m²
Anzahl Zimmer 7
Heizungsart Zentralheizung
Fahrstuhl Personenaufzug
Kaltmiete 1.650 €
Warmmiete 2.050 €
Nebenkosten 400 €
Verfügbar ab (Text) sofort
Kaution 4.500,00 €
 
  • Besprechung
  • Raum 2
  • Besprechung
  • Toiletten
  • Toiletten
  • Büro hinten
  • kleines Büro
  • Eingangsbereich
  • Raum 1
  • Toiletten
  • Flur
  • Außenansicht
  • Grundriss
Ihr Ansprechpartner
 
Da wir Objektangaben nicht selbst ermitteln, übernehmen wir hierfür keine Gewähr. Dieses Exposé ist nur für Sie persönlich bestimmt.
Eine Weitergabe an Dritte ist an unsere ausdrückliche Zustimmung gebunden und unterbindet nicht unserem Provisionsanspruch bei Zustandekommen eines Vertrages. Alle Gespräche sind über unser Büro zuführen. Bei Zuwiderhandlung behalten wir uns Schadenersatz bis zur Höhe der Provisionsansprüche ausdrücklich vor. Zwischenverkauf ist nicht ausgeschlossen.