Immobilien-Hotline: 0841 88 56 45 - 15

Telefonzeiten

Mo - Do 09:00 - 13:00 Uhr
Büro: 0841 88 56 45 - 0
Fax: 0841 88 56 45 - 29
Notfall-Hotline: 0841 88 56 45 - 20

Aktuelle Mietangebote

Innenstadt: Büro mit großzügigen Räumen

Objektnummer:RP304

Objektart:Bürofläche

Ort:85049 Ingolstadt

Adresse:Rathausplatz 3

Baujahr:1961

Zimmerzahl:7

Wohnfläche (ca.):

Bürofläche (ca.):217 m²

Nutzfläche (ca.):

Stockwerk:4

Kaufpreis:

Kaltmiete:1.650 €

Provision:

Klicken Sie auf das Bild für die XXL-Diashow!

» Videoclip zum Objekt

Das Objekt wurde im Jahre 1961 erbaut. Der Zugang zur obersten Etage Erfolg über ein Treppenhhaus oder mit dem Aufzug.

 
Energieausweis
Art: Verbrauchsausweis Gewerbe
Gültig bis: 14.11.2025
Endenergieverbrauch: 110.00 kWh/(m²*a)
Baujahr lt. Energieausweis: 1961
Wesentlicher Energieträger: Gas
Endenergieverbrauch (Wärme): 110.00 kWh/(m²*a)

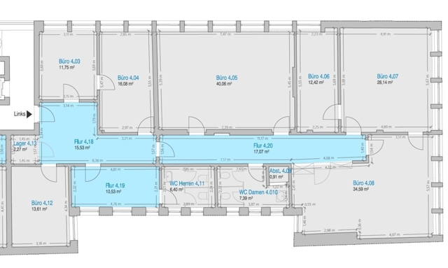
Das großzügige Büro besteht aus 7 Räumen von unterschiedlicher Größe. Das Besprechungszimmer ist mittig im Grundriss gelegen und stellt den größten Raum dar. 2 Toiletten sowie eine Abstellkammer sind ebenfalls vorhanden. Derzeit sind in den Büros zum Teil Teppich- oder PVC-Böden verlegt. Hier kann vom neuen Mieter selbst Hand angelegt werden und sich die Büros nach eigenen Wünsche herrichten. Eine Absprache mit den Eigentümern ist möglich.

Das Büro am Rathausplatz 3, 85049 Ingolstadt, liegt im Herzen der Altstadt direkt am zentralen Rathausplatz. Die Lage bietet eine hervorragende Sichtbarkeit und zählt zu den gefragtesten Geschäftsadressen der Stadt. In unmittelbarer Nähe befinden sich zahlreiche Cafés, Restaurants, Banken sowie verschiedene Dienstleister, was den Standort ideal für Gewerbenutzungen macht.​

Der Rathausplatz ist verkehrsberuhigt und optimal an den öffentlichen Nahverkehr angebunden: Die Bushaltestelle liegt nur wenige Meter entfernt. Parkmöglichkeiten sind in fußläufig erreichbaren Tiefgaragen vorhanden, der Hauptbahnhof ist in wenigen Minuten erreichbar. So vereint dieser Standort eine repräsentative Adresse mit bester Infrastruktur in Ingolstadts Innenstadt.

Die Kaltmiete für dieses Objekt beträgt 1.650 € monatlich, sowie eine Betriebskostenvorauszahlung von 400,00 €. Die Warmmiete beträgt somit 2.050 € im Monat. Die Kaution beläuft sich auf 4.500 €.

Sämtliche allgemeinen Hausmeisterarbeiten werden von einem professionellen Hausmeisterdienst durchgeführt (Kosten in den Betriebskosten bereits beinhaltet).

Das Objekt kann ab sofort bezogen werden.

Werte Energieausweis:

Verbrauchsausweis, 110,00 kWh/(m²a), Energieträger: Gas, Bj. 1961,

Firma Hausverwaltung Michael Specht e.K.
Bei der Arena 5
85053 Ingolstadt

Tel.: 0841 885645-15
Fax: 0841 885645-29

E-Mail: vermietungen@specht-immobilienservice.de

Diese Objekte könnten Sie auch interessieren: